CALLE HERMOSILLA 6, RECOLETOS
Finca clasica del maestro Gutierrez Soto. Arquitectura con historia, reformada con la mas alta contemporaneidad.







RESIDENCIA EXCLUSIVA
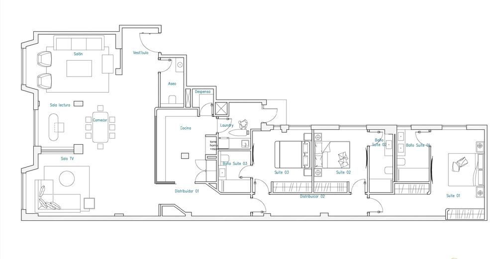
Exclusiva vivienda de lujo en finca clasica rehabilitada del reconocido arquitecto Gutierrez Soto. Gran salon de estilo abierto con techos altos, cocina acristalada con electrodomesticos de ultima generacion y tres dormitorios en suite. La perfecta armonia entre arquitectura clasica y diseno contemporaneo.
CARACTERISTICAS PREMIUM
Edificio emblematico del arquitecto mas influyente del siglo XX en Espana. Portal senorial con portero uniformado.
Mobiliario de diseno de alta gama incluido. Listo para entrar a vivir sin necesidad de inversion adicional.
Luz natural abundante con orientacion privilegiada. Vistas a calle Hermosilla en pleno corazon de Recoletos.
La ubicacion mas prestigiosa de Madrid. A pasos de las mejores boutiques, restaurantes y el Parque del Retiro.
Electrodomesticos de ultima generacion. Diseno que integra cocina y salon en un espacio fluido y elegante.
Volumenes generosos propios de la arquitectura clasica madrilena. Sensacion de amplitud y distincion en cada estancia.
DISTRIBUCION
CONTACTO PRIVADO
Complete el formulario y recibira un dossier privado con informacion detallada de Hermosilla 6, incluyendo planos, fotografias en alta resolucion y analisis de inversion personalizado.
Su informacion es 100% confidencial. No compartimos datos con terceros.
TAMBIEN EN NUESTRA COLECCION
487m2 en quinta planta con un piso por planta. Cocina Gaggenau, roble en espiga, garaje y trastero. Amueblado de diseno.
Descubrir Casa Ayala →